Najświeższe ogłoszenia z całej Polski

Wydanie nr:

294/2025

z dnia

21.10.2025

Ogłoszeń w bazie:

13130
/
/
Sprzedaż lokalu niemieszkalnego nr 7B, znajdującego się na III piętrze budynku położonego przy ul. Warmińskiej 6 w Olsztynie

OGŁOSZENIE

Sprzedaż lokalu niemieszkalnego nr 7B, znajdującego się na III piętrze budynku położonego przy ul. Warmińskiej 6 w Olsztynie


37875.10.2025

PREZYDENT OLSZTYNA

o g ł a s z a

przetarg ustny nieograniczony

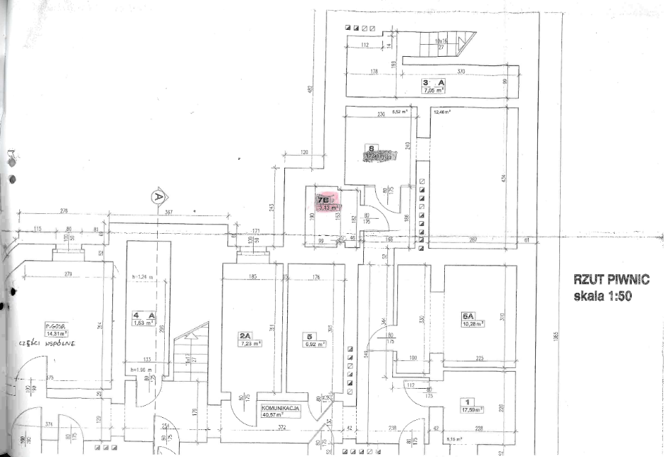
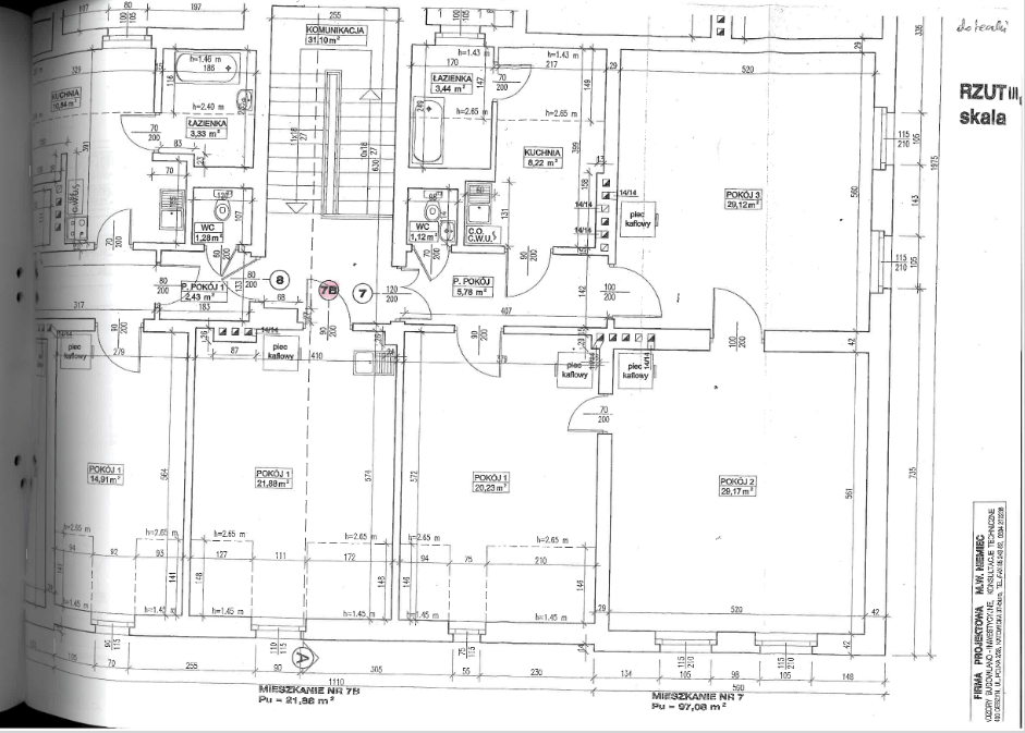
na sprzedaż lokalu niemieszkalnego nr 7B, znajdującego się na III piętrze budynku położonego przy ul. Warmińskiej 6 w Olsztynie wraz ze sprzedażą udziału 23/1000 w częściach wspólnych budynku oraz sprzedażą udziału 23/1000 w gruncie pod budynkiem (obręb 72, działki nr 134, 133/2, o łącznej pow. 528 m2, zapisane w księdze wieczystej KW Nr OL1O/00036479/2).

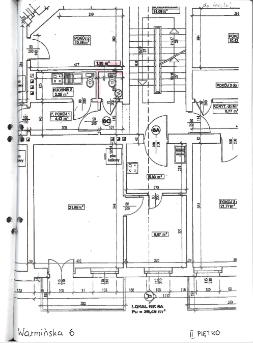
Powierzchnia użytkowa lokalu wynosi – 26,36 m2,

w tym: powierzchnia przynależnego wc (na II piętrze) – 1,35 m2

oraz powierzchnia piwnicy – 3,13 m2.

Cena wywoławcza nieruchomości – 180 000,00 zł

w tym:

cena lokalu – 170 000,00 zł

cena 23/1000 części gruntu (dz. nr 134,133/2) – 10 000,00 zł

Budynek przy ul. Warmińskiej 6, wraz z działkami nr 134, 133/2 wpisany jest do rejestru zabytków woj. warmińsko-mazurskiego i podlega ochronie konserwatorskiej.

Wszelkie prace w budynku należy wykonywać zgodnie z zapisem ustawy z dnia 23 lipca 2003 r. o ochronie zabytków i opiece nad zabytkami (t.j. Dz.U. z 2024 r. poz. 1292) po uzyskaniu zezwolenia Wojewódzkiego Konserwatora Zabytków.

Na podstawie art. 68 ust. 3 ustawy z dnia 21 sierpnia 1997r. o gospodarce nieruchomościami /Dz.U. z 2024 r. poz. 1145 ze zm./ cenę lokalu oraz cenę udziału w gruncie obniża się na wniosek nabywcy o 50%.

W związku z powyższym oraz zgodnie z art. 3 ust. 4 pkt 1 ustawy z 29 sierpnia 2014r. o charakterystyce energetycznej budynków (Dz. U. z 2024 r. poz. 101) obowiązek zapewnienia świadectwa charakterystyki energetycznej nabywcom, nie dotyczy budynku podlegającego ochronie na podstawie przepisów powyższej ustawy o ochronie zabytków i opiece nad zabytkami.

Sprzedaż lokalu, znajdującego się w przedmiotowym budynku jest zwolniona
z podatku VAT
zgodnie z art. 43 ust. 1 pkt 10 oraz art. 29a ust. 8 ustawy z dnia 11 marca 2004r. o podatku od towarów i usług /Dz.U. 2025r. poz. 775 t.j./.

Nieruchomość objęta KW Nr OL1O/00036479/2 w dziale III posiada wpis ostrzeżenia o toczącym się postępowaniu w sprawie o ustanowieniu służebności. Sąd postanowieniem Sygn. akt: X Ns 134/20 z 25.07.2023 r. stwierdził upadek przedmiotowego zabezpieczenia.

Cena nieruchomości ustalona w przetargu (tj. cena lokalu, cena udziału w gruncie) podlega zapłacie nie później niż do dnia zawarcia umowy przenoszącej własność.

Przetarg odbędzie się 21 listopada 2025 r. o godz. 11:00 w siedzibie Urzędu Miasta Olsztyna, pl. Jana Pawła II 1, w sali 219, II piętro.

Wadium w wysokości 18 000,00 zł należy wpłacić na rachunek Urzędu Miasta Olsztyna prowadzony przez Bank Handlowy S.A. nr rachunku: 77 1030 1508 0000 0008 2300 1003 najpóźniej do dnia 17 listopada 2025 r.

Wpłacone wadium winno znajdować się na rachunku Urzędu Miasta Olsztyna najpóźniej w dniu 17 listopada 2025 r.

Wadium wpłacone przez uczestnika przetargu, który przetarg wygrał, zostanie zaliczone
na poczet ceny nabycia nieruchomości.

Pozostałym uczestnikom przetargu, wadium zostanie zwrócone nie później niż przed upływem 3 dni, od dnia rozstrzygnięcia przetargu, na podane konto bankowe.

Uczestnicy przetargu zobowiązani są posiadać dokumenty tożsamości, a osoby inne niż osoby fizyczne dodatkowo muszą przedłożyć do wglądu aktualny wypis z odpowiedniego rejestru. Jeżeli uczestnik jest reprezentowany przez pełnomocnika, konieczne jest przedłożenie oryginału pełnomocnictwa upoważniającego do działania na każdym etapie postępowania przetargowego z potwierdzeniem wniesienia opłaty skarbowej z tytułu pełnomocnictwa, jeżeli wniesienie takiej opłaty wynika z przepisów ustawy z dnia 16 listopada 2006 r. o opłacie skarbowej
(t.j. Dz. U. z 2023r. poz. 2111).

W przypadku zamiaru nabycia nieruchomości w ramach wspólności ustawowej małżeńskiej, wadium winno być wpłacone w imieniu obojga współmałżonków. Do przetargu winni przystąpić oboje małżonkowie, chyba że zostanie przedłożona pisemna zgoda wyrażona przez nieobecnego małżonka do uczestnictwa w przetargu w jego imieniu oraz składania oświadczeń zmierzających do odpłatnego nabycia nieruchomości.

Uchylenie się nabywcy wyłonionego w drodze przetargu od podpisania aktu notarialnego w terminie wyznaczonym przez Prezydenta Olsztyna spowoduje przepadek wpłaconego wadium. W przypadku, gdy nabywcą nieruchomości ustalony zostanie cudzoziemiec, w rozumieniu ustawy z dnia 24 marca 1920r. o nabywaniu nieruchomości przez cudzoziemców, do zawarcia umowy notarialnej nabywca winien przedłożyć zezwolenie, jeżeli uzyskanie zezwolenia wynika z przepisów cytowanej wyżej ustawy.

Koszty sporządzenia umowy notarialnej oraz opłaty sądowe związane z dokonaniem wpisów w księdze wieczystej ponosi nabywca.

Prezydent Olsztyna może odwołać przetarg z uzasadnionej przyczyny.

Szczegółowych informacji udziela Wydział Polityki Lokalowej Urzędu Miasta Olsztyna, budynek przy ul. Wyzwolenia 30, pokój 301, tel. (89) 50-60-303.

Osoby zainteresowane nabyciem przedmiotowego lokalu mogą go oglądać w dniu 28 października 2025 r. w godz. 9:00 – 10:00, 14 listopada 2025 r. w godz. 14:00-15:00, po uprzednim uzgodnieniu telefonicznym z kilkudniowym wyprzedzeniem z administratorem: Zakład Lokali i Budynków Komunalnych, tel. (89) 533-36-26 lub 526-28-20.

Ogłoszenia o przetargach organizowanych przez Prezydenta Olsztyna dostępne są w Internecie pod adresem www.olsztyn.eu, infopublikator.pl oraz w Biuletynie Informacji Publicznej, prowadzonym przez Urząd Miasta Olsztyna pod adresem www.bip.olsztyn.eu oraz na Elektronicznej Tablicy Ogłoszeń Urzędu Miasta Olsztyna.

SZCZEGÓŁY OGŁOSZENIA

INNE OGŁOSZENIA

Wieś Krośnice, Gmina Krośnice, działka nr 506/96 AM-1 o powierzchni 3942 m2nieruchomość gruntowa zabudowana budynkiem usługowym pełniącym wcześniej funkcję Schroniska Młodzieżowego i Domu Turysty. Nieruchomość położona jest przy ul. Kwiatowej 4 w Krośnicach.

Sprzedaż lokalu mieszkalnego nr 4a, położonego na poddaszu czterokondygnacyjnego budynku nr 7 zlokalizowanego przy ul. Lelewela w Olsztynie

Sprzedaż lokalu mieszkalnego nr 4, położonego na I piętrze budynku nr 9 zlokalizowanego przy ul. Żeromskiego w Olsztynie

Ogłoszenie Starosty Otwockiego o zamiarze wszczęcia postępowania administracyjnego w sprawie wydania decyzji dot. ograniczenia sposobu korzystania z nieruchomości o nieuregulowanym stanie prawnym, położonej w miejscowości Borków (powiat otwocki) – działka ewidencyjna nr 300/13 z obrębu 0003 Borków, gm. Kołbiel