Najświeższe ogłoszenia z całej Polski

Wydanie nr:

107/2026

z dnia

17.04.2026

Ogłoszeń w bazie:

9481
/
/
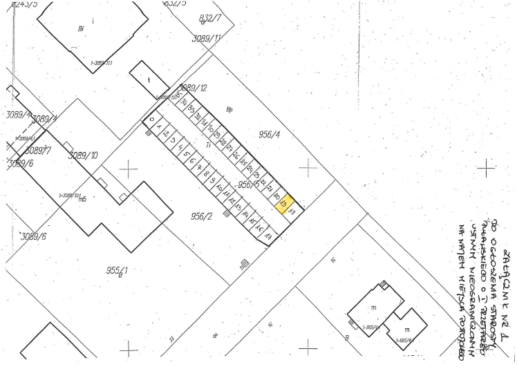
Najem miejsca postojowego oznaczonego numerem 19

OGŁOSZENIE

Najem miejsca postojowego oznaczonego numerem 19

Puławy, dnia 7 maja 2024 r.

ZN.6845.17.2024.ZP

STAROSTA PUŁAWSKI

działając na podstawie art. 38 ustawy z dnia 21 sierpnia 1997 roku o gospodarce nieruchomościami
(Dz. U. z 2023 r. poz. 344 z późn. zm.), w wykonaniu Zarządzenia Nr 41/2024 Starosty Puławskiego
z dnia 7 lutego 2024 roku w sprawie sporządzenia i podania do publicznej wiadomości wykazu nieruchomości, stanowiącej własność Skarbu Państwa, w części przeznaczonej do oddania w najem na okres do 3 lat w trybie przetargowym, ogłasza:

I PRZETARG USTNY NIEOGRANICZONY

na najem miejsca postojowego oznaczonego numerem 19,usytuowanego na nieruchomości gruntowej, oznaczonej jako działka nr 956/5 o pow. 0,0733 ha, stanowiącej własność Skarbu Państwa, położonej na terenie gminy Miasto Puławy, obręb Miasto Puławy.

Szczegółowe rozmieszczenie miejsca postojowego stanowi załącznik numer 1 do niniejszego ogłoszenia.

Dla przedmiotowej nieruchomości Sąd Rejonowy w Puławach V Wydział Ksiąg Wieczystych prowadzi księgę wieczystą nr LU1P/00061072/5.

  1. DANE DOTYCZĄCE PRZEDMIOTU NAJMU

Miejsce postojowe zlokalizowane jest nieruchomości gruntowej, oznaczonej numerem ewidencyjnym 956/5 o pow. 0,0733 ha przy ul. Reymonta w Puławach. Na przedmiotowej nieruchomości urządzony jest ogrodzony parking, na którym zlokalizowane jest 35 miejsc postojowych, a wjazd odbywa się przez bramę otwieraną na pilota.

Na powyższej nieruchomości zamontowany jest system monitoringu wizyjnego, który ma na celu zapewnienie porządku publicznego i bezpieczeństwa najemców oraz ochronę mienia Skarbu Państwa na obszarze parkingu objętym monitoringiem. Obszar parkingu objęty monitoringiem wizyjnym obejmuje fragment ul. Reymonta stanowiący pas drogi publicznej bezpośrednio przed bramą wjazdową na parking oraz częściowo miejsca postojowe zlokalizowane bezpośrednio przy bramie wjazdowej.

Na podstawie ustaleń miejscowego planu zagospodarowania przestrzennego osiedla „Sienkiewicza – Składowa” w Puławach, zatwierdzonego Uchwałą Nr XVII/153/04 Rady Miasta Puławy z dnia
26 lutego 2004 r., ogłoszoną w Dz. Urz. Woj. Lub. Nr 90, poz. 1512 z dnia 26 maja 2004 r., stwierdza się, że działka numer 956/5 przy ul. W. Reymonta w Puławach, położona jest w obrębie oznaczonym symbolami:

  • 23 U” z przeznaczeniem terenu pod zespół garaży i otwartych miejsc parkingowych;
  • 27 KDD/D” z przeznaczeniem terenu pod dojazd.

Na obszarze gminy Miasto Puławy nie wyznaczono obszaru rewitalizacji oraz nie ustanowiono Specjalnej Strefy Rewitalizacji, o których mowa w art. 8 ust. 1 i art. 25 ust. 1 ustawy z dnia
9 października 2015 roku o rewitalizacji (tekst jednolity Dz. U. z 2024 r., poz. 278).

  1. DANE DOTYCZĄCE CENY WYWOŁAWCZEJ, WADIUM
    I POSTĄPIENIA
  2. Cena wywoławcza miesięcznego czynszu najmu za miejsce postojowe numer 19 wynosi 65,00 zł netto.

Wylicytowana wysokość miesięcznego czynszu najmu podlegać będzie opodatkowaniu podatkiem VAT, zgodnie z zapisami ustawy z dnia 11 marca 2004 roku o podatku od towarów i usług (Dz. U. z 2024 r., poz. 361).W przypadku zmiany stawki podatku VAT, zostanie zastosowana stawka obowiązująca w dacie zawarcia umowy.

  1. Warunkiem dopuszczenia do przetargu jest wpłacenie wadium w wysokości 20,00 zł (słownie: dwadzieścia złotych 00/100) w terminie do dnia 23 maja 2024 roku, na rachunek bankowy Starostwa Powiatowego w Puławach, al. Królewska 19, 24-100 Puławy nr 88 8741 0004 0007 6858 2000 0060 w Lubelskim Banku Spółdzielczym z siedzibą w Końskowoli.

W tytule przelewu powinna być zawarta informacja o numerze miejsca postojowego oraz lokalizacji np. „Wadium na miejsce postojowe nr 19 przy ul. Reymonta”.

Wpłata wadium na miejsce postojowe upoważnia do wylicytowania wskazanego
w tytule przelewu miejsca postojowego.

W przypadku wpłacenia wadium w formie przelewu bankowego, wpłata winna być dokonana odpowiednio wcześniej tak, aby w dniu 23 maja 2024 roku wadium znalazło się na rachunku organizatora przetargu.

Wadium zwraca się niezwłocznie po odwołaniu albo zamknięciu przetargu, jednak nie później niż przed upływem 3 dni od dnia odpowiednio: odwołania, zamknięcia, unieważnienia, zakończenia wynikiem negatywnym przetargu, na podstawie pisemnego wniosku, w którym wskazana będzie forma zwrotu wadium tj. gotówka lub przelew na wskazany numer rachunku bankowego.

Wadium wpłacone przez osobę, która wygra przetarg zaliczone zostanie na poczet wylicytowanej ceny w dniu podpisania umowy najmu. W przypadku uchylenia się od zawarcia umowy, wadium ulegnie przepadkowi na rzecz Wynajmującego.

Wadium wpłacone przez osobę trzecią wniesione na rzecz innej osoby, prócz wpisania numeru miejsca postojowego, winno w tytule wskazywać osobę na rzecz której zostało wniesione.

  1. Wysokość jednego postąpienia, nie mniej niż 1 % ceny wywoławczej z zaokrągleniem
    w górę do pełnych złotych, ustalają uczestnicy przetargu.
  2. W przetargu mogą brać udział osoby fizyczne lub prawne i jednostki organizacyjne
    nie posiadające osobowości prawnej. Osoby reprezentujące osoby fizyczne lub prawne powinny posiadać stosowne pełnomocnictwa udzielone na piśmie. Brak pełnomocnictwa eliminuje reprezentanta z udziału w licytacji.
  1. DANE DOTYCZĄCE TERMINU I MIEJSCA PRZETARGU
  1. Pierwszy przetarg ustny nieograniczony na najem miejsca postojowego, oznaczonego numerem 19, odbędzie się w dniu 28 maja 2024 roku o godz. 9:20 w siedzibie Starostwa Powiatowego w Puławach przy al. Królewskiej 19 w sali nr 102.
  2. Przetarg poprowadzi Komisja przetargowa powołana Zarządzeniem Starosty Puławskiego.
  3. W przypadku zaistnienia okoliczności, których nie można było przewidzieć w dniu ogłoszenia przetargu dopuszcza się zmianę miejsca (numeru sali) przeprowadzenia przetargu.
  1. DANE DOTYCZĄCE PRZETARGU
  2. Przed przystąpieniem do przetargu Komisji przetargowej należy przedstawić:
  • ważny dokument potwierdzający tożsamość,
  • pisemne oświadczenie o zapoznaniu się z warunkami przetargu (wzór stanowi zał. nr 2 do ogłoszenia),
  • pisemne oświadczenie, dotyczące wyrażenia zgody na przetwarzanie danych osobowych przez Starostwo Powiatowe w Puławach, w związku z postępowaniem przetargowym oraz zawarciem i wykonywaniem umowy na najem miejsca postojowego przy ul. Reymonta w Puławach, na podstawie art. 6 ust. 1 pkt e
    w związku z art. 6 ust. 1 pkt b Rozporządzenia Parlamentu Europejskiego i Rady (UE) w sprawie ochrony osób fizycznych w związku przetwarzaniem danych osobowych i w sprawie swobodnego przepływu takich danych oraz uchylenia dyrektywy 95/46/WE (RODO) z dnia 27 kwietnia 2016 roku oraz art. 38 ustawy
    z dnia 21 sierpnia 1997 roku o gospodarce nieruchomościami (Dz. U. z 2023 r. poz. 344z późn. zm.) (wzór klauzuli informacyjnej stanowi zał. nr 3 do ogłoszenia),

Komisja Przetargowa biorąc pod uwagę fakt, że nie każdy uczestnik przetargu może dysponować warunkami technicznymi by stosowne oświadczenia wydrukować samodzielnie, każdorazowo dysponuje gotowymi drukami oświadczeń do podpisania.

ponadto w przypadku:

  • podmiotów innych niż osoby fizyczne konieczne jest dodatkowo przedłożenie aktualnego dokumentu (oryginał), z którego wynika upoważnienie do reprezentowania tego podmiotu, w przypadku reprezentowania Oferenta przez pełnomocnika należy dołączyć oryginał pełnomocnictwa;
  • małżonków do dokonywania czynności przetargowych konieczna jest obecność obojga małżonków lub jednego z nich ze stosownym pełnomocnictwem drugiego małżonka, zawierającym zgodę na uczestnictwo w przetargu i zawarcie umowy najmu.
  1. Komisja przetargowa weźmie pod uwagę ofertę z najwyższą zaoferowaną ceną. Po trzecim wywołaniu najwyższej zaoferowanej ceny dalsze postąpienia nie zostaną przyjęte.
  2. Protokół z przetargu stanowić będzie podstawę do zawarcia umowy najmu.
  1. INNE ISTOTNE POSTANOWIENIA
  1. Starosta Puławski może odwołać przetarg jedynie z ważnych powodów, niezwłocznie podając informację do publicznej wiadomości.
  2. Przetarg zostanie przeprowadzony zgodnie z przepisami ustawy z dnia 21 sierpnia 1997 roku
    o gospodarce nieruchomościami (Dz. U. z 2023 r. poz. 344 z późn. zm.).
  3. Najemca będzie opłacał miesięczny czynsz najmu w wysokości ustalonej w wyniku przetargu powiększony o obowiązująca stawkę VAT w terminie do 20 dnia każdego miesiąca.
    Zasady aktualizacji opłat – stawki czynszu podlegają bieżącej waloryzacji z dniem 1 kwietnia każdego roku kalendarzowego według wskaźnika cen towarów i usług konsumpcyjnych
    za poprzedni rok, ogłoszonego przez Prezesa Głównego Urzędu Statystycznego w Dzienniku Urzędowym RP „Monitor Polski”. W przypadku kiedy ogłoszenia Prezesa Głównego Urzędu Statystycznego będzie wynikała deflacja, wysokość czynszu nie będzie zmieniana o jej wysokość.
  4. Najemca zobowiązany będzie utrzymać czystość i porządek najmowanego miejsca postojowego oraz najbliższego otoczenia.
  5. Wynajmujący zastrzega, że w umowie, która zostanie zawarta z wyłonionym w postępowaniu przetargowym podmiotem znajdą się postanowienia uprawniające Wynajmującego
    do rozwiązania umowy najmu bez zachowania okresu wypowiedzenia w przypadku zmiany sposobu wykorzystywania nieruchomości, wykorzystywania jej w sposób niezgodny
    z przeznaczeniem albo w sposób uciążliwy dla pozostałych Najemców, okolicznych mieszkańców, bądź środowiska.

Szczegółowych informacji dotyczących przetargów udziela Wydział Zarządzania Nieruchomościami Starostwa Powiatowego w Puławach,
al. Królewska 19, pok. 103, tel. (81) 886-11-62.

Treść ogłoszenia znajduje się na stronie www.pulawy.powiat.pl, oraz w Biuletynie Informacji Publicznej Starostwa Powiatowego
w Puławach.

STAROSTA

Danuta Smaga

Załącznik nr 2

do ogłoszenia Starosty Puławskiego

o I przetargu ustnym nieograniczonym

na najem miejsca postojowego

Puławy, dnia ……………………….

…………………………………………

…………………………………………

…………………………………………

…………………………………………

OŚWIADCZENIE

Ja, niżej podpisany/-a oświadczam, że zapoznałem/-am się z pełną wersja ogłoszenia
o I przetargu ustnym nieograniczonym na najem miejsca postojowego, oznaczonego numerem 19, usytuowanego na nieruchomości gruntowej, oznaczonej jako działka nr 956/5 o pow. 0,0733 ha, stanowiącej własność Skarbu Państwa, położonej na terenie Gminy Miasto Puławy, obręb
Miasto Puławy.

Stan faktyczny i prawny przedmiotu przetargu jest mi znany i nie wnoszę żadnych zastrzeżeń tytułem ewentualnych wad ukrytych przedmiotu przetargu.

………………………………………………….

Załącznik nr 3

do ogłoszenia Starosty Puławskiego

o I przetargu ustnym nieograniczonym

na najem miejsca postojowego

KLAUZULA INFORMACYJNA

Zgodnie z art. 13 ust. 1 i ust. 2 Rozporządzenia Parlamentu Europejskiego i Rady (UE) w sprawie ochrony osób fizycznych w związku z przetwarzaniem danych osobowych i w sprawie swobodnego przepływu takich danych oraz uchylenia dyrektywy 95/46/WE (ogólne rozporządzenie o ochronie danych) z dnia 27 kwietnia 2016 r. informuję, iż:

  1. Administratorem Pani/Pana danych osobowych jest Starosta Puławski z siedzibą al. Królewska 19, 24 -100 Puławy. Można się z nami kontaktować:
    – listownie pod wskazany powyżej adres,
    – mailowo na adres: rodo@pulawy.powiat.pl
    – telefonicznie: 81-886-11-00.
  2. Inspektorem Ochrony Danych Osobowych w Starostwie Powiatowym w Puławach jest Pani Jolanta Rafałko.
  3. Pani/Pana dane osobowe przetwarzane będą w celu realizacji zadań związanych z postępowaniem przetargowym oraz zawarciem i wykonaniem umowy na najem miejsca postojowego przy ul. Reymonta w Puławach na podstawie art. 6 ust 1 pkt e w związku z art. 6 ust. 1 pkt b wyżej wymienionego rozporządzenia oraz art. 38 ustawy z dnia 21 sierpnia 1997 roku
    o gospodarce nieruchomościami (Dz.U. z 2023 r. poz. 344).
  4. W celach realizacji czynności o których mowa w pkt 3, potrzebujemy Pani/Pana następujących danych:
  • imię i nazwisko,
  • adres zamieszkania i do korespondencji,
  • nr PESEL,
  • nr dowodu osobistego,
  • numer telefonu,
  • inne dane (wynikające z przepisów ustawy).
  1. Odbiorcami Pani/Pana danych osobowych mogą być: uprawnione organy publiczne, podmioty wykonujące zadania publiczne lub działające na zlecenie organów władzy publicznej w zakresie i celach, które wynikają z przepisów powszechnie obowiązującego prawa oraz inne podmioty, które na podstawie stosownych umów przetwarzają dane osobowe dla których Administratorem danych jest Starosta Puławski.
  2. Pani/Pana dane osobowe nie będą przekazywane do państwa trzeciego/organizacji międzynarodowej.
  3. Pani/Pana dane osobowe będą przechowywane przez okres archiwizacji akt zgodnie z kategorią archiwalną, niezbędny do zakończenia czynności związanych z realizacją Pani/Pana wniosku, umowy lub do dnia wypełnienia wzajemnych zobowiązań, nie krócej jednak niż przez okres wskazany w ustawie z dnia 14 lipca 1982 roku o narodowym zasobie archiwalnym i archiwach (Dz. U. z 2020 r., poz. 164 z późn. zm.).
  4. Posiada Pani/Pan prawo dostępu do:
  • treści swoich danych na podstawie art. 15 RODO,
  • prawo ich sprostowania na podstawie art. 16 RODO,
  • usunięcia danych (prawo do bycia zapomnianym”) na podstawie art. 17 RODO,
  • ograniczenia przetwarzania danych na podstawie art. 18 RODO,
  • prawo do przenoszenia danych na podstawie art. 20 RODO,
  • prawo wniesienia sprzeciwu wobec przetwarzania danych na podstawie art. 21 RODO,
  • prawo do wycofania zgody w dowolnym momencie bez wpływu na zgodność z prawem przetwarzania na podstawie art. 7 ust 3 (*jeżeli przetwarzanie odbywa się na podstawie zgody), którego dokonano na podstawie zgody przed jej wycofaniem.
  1. Przysługuje Pan/Pani prawo wniesienia skargi do Prezesa Urzędu Ochrony Danych Osobowych (PUODO), gdy uzna Pani/Pan, iż przetwarzanie danych osobowych Pani/Pana dotyczących, narusza przepisy ogólnego rozporządzenia
    o ochronie danych osobowych z dnia 27 kwietnia 2016 r.
  2. Podanie przez Pana/Panią danych osobowych jest wymogiem ustawowym. Jest Pan/Pani zobowiązana do ich podania,
    a konsekwencją niepodania danych osobowych będzie brak możliwości prawnych zrealizowania Pani/Pana wniosku
    w sprawie o której mowa w pkt. 3.
  3. Pani/Pana dane nie będą/będą przetwarzane w sposób zautomatyzowany, w tym również w formie profilowania.

………………………………………………………………………………………..
(miejscowość, data, imię i nazwisko)

SZCZEGÓŁY OGŁOSZENIA

INNE OGŁOSZENIA

Wójt Gminy Chodel informuje o II przetargu pisemnym nieograniczonym na sprzedaż używanego samochodu specjalnego – pożarniczego marki Star GBA 2,5/16.

Prezydent Miasta Tczewa informuje o wywieszeniu wykazu nieruchomości przeznaczonych do oddania w dzierżawę

Ogłoszenie o zamiarze wszczęcia postępowania administracyjnego

Starosta Kołobrzeski podaje do publicznej wiadomości wykaz nieruchomości Skarbu Państwa  przeznaczonej do oddania w dzierżawę w trybie  bezprzetargowym na czas oznaczony do lat 3