Prezydent Miasta Nowa Sól
ogłasza przetarg ustny nieograniczony
na sprzedaż lokali mieszkalnych położonych w Nowej Soli wraz ze sprzedażą ułamkowej części nieruchomości gruntowej, na której jest posadowiony budynek
| lp | KW Nr | Opis nieruchomości | Opis lokalu | Cena wywoławcza | Wadium |
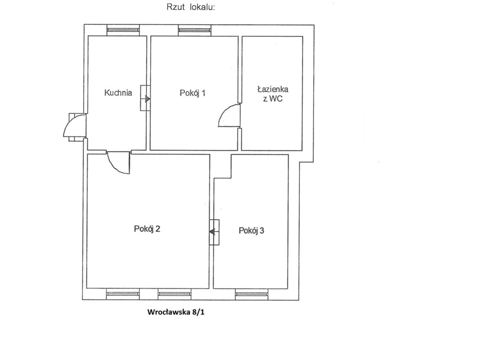
| 1 | ZG1N/00027137/9 | obręb 2 miasta Nowa Sól, ul. Wrocławska 8 – Wróblewskiego 8 działka nr 674/34 o pow. 0.0423 ha udział w gruncie 0,172 | lokal mieszkalny nr 1 o pow. użytkowej 59,52 m2 w tym: trzy pokoje, kuchnia, łazienka z WC lokal położony na parterze (I kondygnacji) | 90.000,00 zł | 9.000,00 zł |
| 2 | ZG1N/00027137/9 | obręb 2 miasta Nowa Sól, ul. Wrocławska 8 – Wróblewskiego 8 działka nr 674/34 o pow. 0.0423 ha udział w gruncie 0,198 | lokal mieszkalny nr 2 o pow. użytkowej 68,42 m2 w tym: trzy pokoje, kuchnia, WC wspólne na klatce schodowej lokal położony na I piętrze (II kondygnacji) | 120.000,00 zł | 12.000,00 zł |
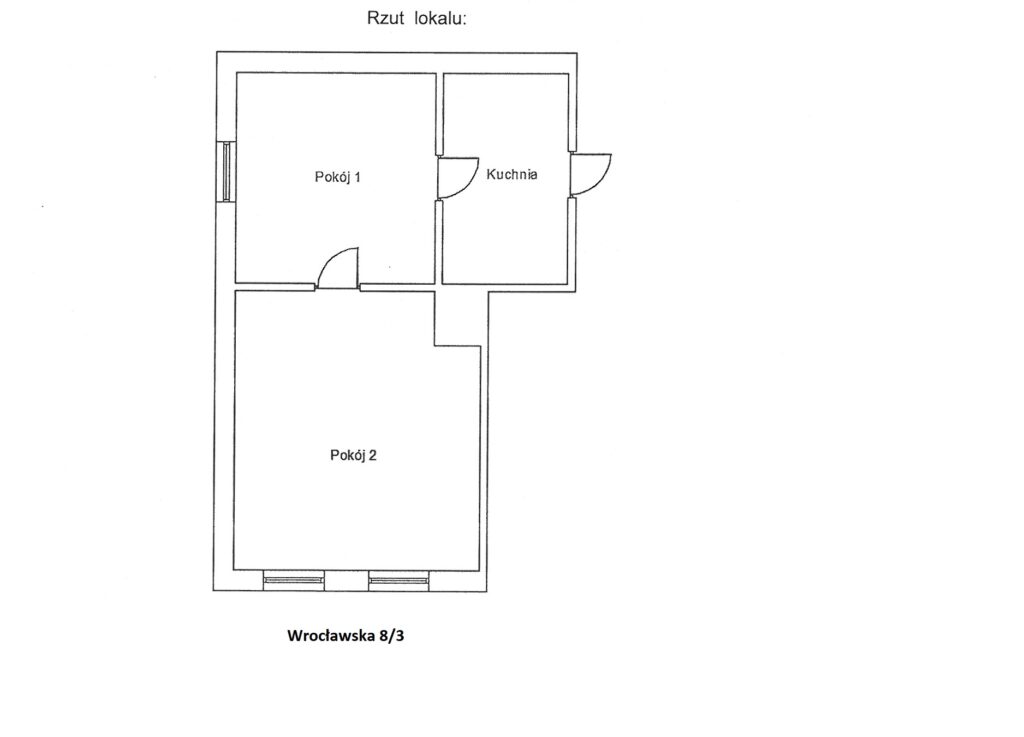
| 3 | ZG1N/00027137/9 | obręb 2 miasta Nowa Sól, ul. Wrocławska 8 – Wróblewskiego 8 działka nr 674/34 o pow. 0.0423 ha udział w gruncie 0,150 | lokal mieszkalny nr 3 o pow. użytkowej 52,15 m2 w tym: dwa pokoje, kuchnia, WC wspólne na klatce schodowej lokal położony na I piętrze (II kondygnacji) | 100.000,00 zł | 10.000,00 zł |
Sprzedaż nieruchomości podlega zwolnieniu od podatku VAT na podstawie art. 43 ust.1 pkt 10 oraz art. 29 a ust. 8 ustawy z dnia 11 marca 2004 r. o podatku od towarów i usług (t.j. Dz. U. z 2024 r. poz. 361).
Poprzednie przetargi na w/w lokale odbyły się w dniu 27 września 2024 r., 15 listopada 2024 r. oraz 10 stycznia 2025 r.
Przetarg odbędzie się 27 lutego 2025 r. o godzinie 900 w pokoju nr 2 Wydziału Gospodarki Nieruchomościami Urzędu Miejskiego w Nowej Soli przy ul. Parafialnej 2.
Wadium w pieniądzu na lokal należy wnieść najpóźniej do dnia 21 lutego 2025 r. na konto nr 71 1020 5402 0000 0802 0365 8879 Gminy Nowa Sól – Miasto, PKO Bank Polski S.A. W tytule wpłaty należy podać, że dotyczy ona wadium, wpisać adres nieruchomości, a także imię i nazwisko osoby lub osób wnoszących wadium (małżonków, bądź innych osób, które wspólnie planują nabycie nieruchomości).Osoby posiadające odrębne majątki muszą na przetarg stawić się razem lub udzielić stosownego pełnomocnictwa osobom ich reprezentującym. Datą dokonania wniesienia wadium jest data uznania rachunku bankowego Gminy Nowa Sól – Miasto.
Wniesione wadium zostanie zaliczone kupującemu na poczet ceny nabycia nieruchomości lokalowej. Osobom, które nie wygrały przetargu wadium zwrócone zostanie niezwłocznie po przetargu na konto, z którego dokonano przelewu. W przypadku wniesienia wadium w sposób uniemożliwiający jego zwrot na konto osoby je wnoszącej uczestnik przetargu zobowiązany jest do wskazania nr konta na które ma zostać dokonany jego zwrot.
Uczestnicy przetargu winni przed otwarciem przetargu przedłożyć komisji przetargowej:
– w przypadku osób fizycznych – dokument potwierdzający tożsamość, a w przypadku reprezentowaniainnej osoby fizycznej, również „pełnomocnictwo notarialne”,
– w przypadku wspólników spółki cywilnej – dokument potwierdzający tożsamość wspólników spółki, oryginały lub poświadczone za zgodność z oryginałem: umowy spółki, aktualne zaświadczenie o wpisie do ewidencji działalności gospodarczej, uchwałę odpowiedniego organu spółki zezwalającej na przystąpienie i udział w przetargu oraz inne konieczne upoważnienia i pełnomocnictwa notarialne,
– w przypadku osób prawnych – dokument potwierdzający tożsamość osób reprezentujących osobę prawną, oryginały lub poświadczone za zgodność z oryginałem: umowy spółki, aktualny odpis z KRS i uchwałę odpowiedniego organu osoby prawnej zezwalającej na przystąpienie i udział w przetargu oraz inne konieczne upoważnienia i pełnomocnictwa notarialne.
Cena za lokal oraz udział w gruncie podlega zapłacie nie później niż do dnia zawarcia notarialnej umowy sprzedaży, której termin zostanie ustalony w ciągu 21 dni od dnia rozstrzygnięcia przetargu. W przypadku uchylenia się osoby, która wygrała przetarg od zawarcia umowy notarialnej, wniesione wadium nie podlega zwrotowi.
Koszty sporządzenia umowy notarialnej oraz opłaty sądowe związane z dokonaniem wpisów w księdze wieczystej ponosi nabywca.
Cudzoziemcy (w rozumieniu ustawy z dnia 24 marca 1920 r. o nabywaniu nieruchomości przez cudzoziemców t.j. Dz. U. z 2017 r. poz. 2278) w przypadku wygrania przetargu zobowiązani są przed zawarciem umowy notarialnej uzyskać zgodę Ministra Spraw Wewnętrznych i Administracji na nabycie nieruchomości w przypadkach, gdy zgoda ta jest wymagana.
Przetarg zostanie przeprowadzony zgodnie z rozporządzeniem Rady Ministrów z dnia 14 września 2004 r. (t.j. Dz. U. z 2021 r. poz. 2213).
Prezydent Miasta Nowa Sól ma prawo odwołania przetargu.
Informacji udziela Wydział Gospodarki Nieruchomościami Urzędu Miasta Nowej Soli pok. nr 7, tel. 68 459 03 43.
Wpłata wadium oraz udział w przetargu wiążą się z przetwarzaniem danych osobowych uczestników przetargów na zasadach określonych w Rozporządzeniu Parlamentu Europejskiego i Rady (UE) 2016/679 z dnia 27 kwietnia 2016r. w sprawie ochrony osób fizycznych w związku z przetwarzaniem danych osobowych i w sprawie swobodnego przepływu takich danych oraz uchylenia dyrektywy 95/46/WE (ogólne rozporządzenie o ochronie danych w zakresie wynikającym z ustawy z dnia 21 sierpnia 1997 r. o gospodarce nieruchomościami (j.t. Dz.U.2024.1145 ze zm.) oraz rozporządzenia Rady Ministrów z dnia 14 września 2004 r. w sprawie sposobu i trybu przeprowadzania przetargów oraz rokowań na zbycie nieruchomości (j.t. Dz.U.2021.2213). Z informacją na temat przetwarzania danych osobowych, w trakcie czynności wykonywanych przez pracowników Urzędu Miejskiego w Nowej Soli, związanych min. z gospodarowaniem mieniem komunalnym, można się zapoznać w „Klauzuli informacyjnej” zamieszczonej na stronie Biuletynu informacji Publicznej Urzędu Miejskiego w Nowej Soli menu; „Przetargi” w zakładce „Klauzula informacyjna RODO” (pod adresem: https://bip.nowasol.pl/przetargi.html ).
Oględzin lokalu będzie można dokonać, po uprzednim potwierdzeniu obecności na co najmniej jeden dzień przed ustalonym terminem pod nr tel. 68 417 60 12 oraz 68 417 60 14 bądź pod adresem e-mail: p.suska@zum.nowasol.pl wwyznaczonych poniżej terminach:
w dniu 29 stycznia 2025 roku (środa):
– ul. Wrocławska 8 – Wróblewskiego 8 lok. nr 1 w godzinach 900 – 920
– ul. Wrocławska 8 – Wróblewskiego 8 lok. nr 2 w godzinach 900 – 920
– ul. Wrocławska 8 – Wróblewskiego 8 lok. nr 3 w godzinach 900 – 920
w dniu 5 lutego 2025 roku (środa):
– ul. Wrocławska 8 – Wróblewskiego 8 lok. nr 1 w godzinach 900 – 920
– ul. Wrocławska 8 – Wróblewskiego 8 lok. nr 2 w godzinach 900 – 920
– ul. Wrocławska 8 – Wróblewskiego 8 lok. nr 3 w godzinach 900 – 920
w dniu 19 lutego 2025 roku (środa):
– ul. Wrocławska 8 – Wróblewskiego 8 lok. nr 1 w godzinach 900 – 920
– ul. Wrocławska 8 – Wróblewskiego 8 lok. nr 2 w godzinach 900 – 920
– ul. Wrocławska 8 – Wróblewskiego 8 lok. nr 3 w godzinach 900 – 920
R. Parus



