38226.10.2025 |
PREZYDENT OLSZTYNA
o g ł a s z a
przetarg ustny nieograniczony
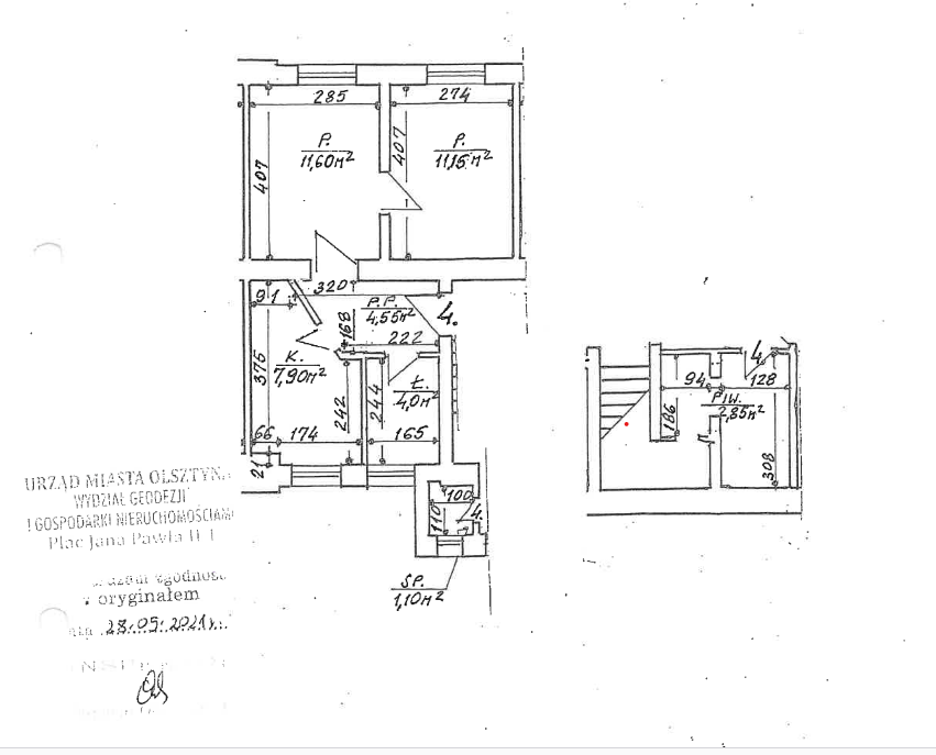
na sprzedaż lokalu mieszkalnego nr 4, położonego na I piętrze budynku nr 9 zlokalizowanego przy ul. Żeromskiego w Olsztynie z jednoczesną sprzedażą 93/1000 części wspólnych budynku oraz udziału wynoszącego 93/1000 części w gruncie pod budynkiem objętym księgą wieczystą nr OL1O/00019204/9 (obr.20, dz. nr 37 o pow. 311 m²). Nieruchomość wolna jest od obciążeń oraz nie jest przedmiotem zobowiązań.
Powierzchnia użytkowa lokalu wynosi – 43,15 m2 , w tym piwnica 2,85 m².
Cena wywoławcza nieruchomości – 310 000,00 zł
w tym: cena lokalu – 282 000,00 zł
cena 93/1000 części gruntu (dz. nr 37) – 28 000,00 zł
Budynek nr 9 przy ul. Żeromskiego w obrębie dz. nr 37 wpisany jest do rejestru zabytków woj. warmińsko-mazurskiego i podlega ochronie konserwatorskiej. Wszelkie prace w budynku należy wykonywać zgodnie z zapisem ustawy z dnia 23.07.2003r. o ochronie zabytków i opiece nad zabytkami (t.j. Dz.U. z 2024 r. poz. 1292) po uzyskaniu zezwolenia Wojewódzkiego Konserwatora Zabytków.
Na podstawie art. 68 ust. 3 ustawy z dnia 21 sierpnia 1997r. o gospodarce nieruchomościami /Dz.U. z 2024 r. poz. 1145 ze zm./ wylicytowaną cenę lokalu oraz cenę udziału w gruncie, na wniosek nabywcy, obniża się o 50%.
W myśl art. 3 ust 4 pkt 1 ustawy z dn. 29.08.2014 o charakterystyce energetycznej budynków (t.j. Dz. U. z 2024 poz. 101) przy sprzedaży budynku wpisanego do rejestru zabytków nie występuje obowiązek sporządzenia i przekazania nabywcy świadectwa charakterystyki energetycznej.
Ponadto sprzedaż lokalu, znajdującego się w przedmiotowym budynku jest zwolniona
z podatku VAT zgodnie z art. 43 ust. 1 pkt 10 oraz art. 29a ust. 8 ustawy z dnia 11 marca 2004 r. o podatku od towarów i usług /Dz.U. 2025 r. poz. 775 t.j./.
Przetarg odbędzie się 21 listopada 2025 r. o godz. 12:00 w siedzibie Urzędu Miasta Olsztyna,
pl. Jana Pawła II 1, w sali 219, II piętro.
Wadium w wysokości 31 000,00 zł należy wpłacić na rachunek Urzędu Miasta Olsztyna prowadzony przez Bank Handlowy S.A. nr rachunku: 77 1030 1508 0000 0008 2300 1003najpóźniej do dnia 17 listopada 2025 r.
Wpłacone wadium winno znajdować się na rachunku Urzędu Miasta Olsztyna najpóźniej w dniu 17 listopada 2025 r.
Wadium wpłacone przez uczestnika przetargu, który przetarg wygrał, zostanie zaliczone
na poczet ceny nabycia nieruchomości.
Pozostałym uczestnikom przetargu, wadium zostanie zwrócone nie później niż przed upływem 3 dni, od dnia rozstrzygnięcia przetargu, na podane konto bankowe.
Uczestnicy przetargu zobowiązani są posiadać dokumenty tożsamości. Podmioty inne niż osoby fizyczne dodatkowo muszą przedłożyć do wglądu aktualny wypis z odpowiedniego rejestru. Jeżeli uczestnik jest reprezentowany przez pełnomocnika, konieczne jest przedłożenie oryginału pełnomocnictwa upoważniającego do działania na każdym etapie postępowania przetargowego z potwierdzeniem wniesienia opłaty skarbowej z tytułu pełnomocnictwa, jeżeli wniesienie takiej opłaty wynika z przepisów ustawy z dnia 16.11.2006 r. o opłacie skarbowej (t.j. Dz. U. z 2023 r. poz. 2111 ze zm.).
W przypadku zamiaru nabycia nieruchomości w ramach wspólności ustawowej małżeńskiej, wadium winno być wpłacone w imieniu obojga współmałżonków. Do przetargu winni przystąpić oboje małżonkowie, chyba że zostanie przedłożona pisemna zgoda wyrażona przez nieobecnego małżonka do uczestnictwa w przetargu w jego imieniu oraz składania oświadczeń zmierzających do odpłatnego nabycia nieruchomości.
Uchylenie się nabywcy wyłonionego w drodze przetargu od podpisania aktu notarialnego w terminie wyznaczonym przez Prezydenta Olsztyna spowoduje przepadek wpłaconego wadium.
W przypadku, gdy nabywcą nieruchomości ustalony zostanie cudzoziemiec, w rozumieniu ustawy z dnia 24 marca 1920 r. o nabywaniu nieruchomości przez cudzoziemców, do zawarcia umowy notarialnej nabywca winien przedłożyć zezwolenie, jeżeli uzyskanie zezwolenia wynika
z przepisów cytowanej wyżej ustawy.
Koszty sporządzenia umowy notarialnej oraz opłaty sądowe związane z dokonaniem wpisów w księdze wieczystej ponosi nabywca.
Prezydent Olsztyna może odwołać przetarg z uzasadnionej przyczyny.
Szczegółowych informacji udziela Wydział Polityki Lokalowej Urzędu Miasta Olsztyna, budynek przy ul. Wyzwolenia 30, pokój 301, tel. (89) 50-60-304.
Osoby zainteresowane nabyciem przedmiotowego lokalu mogą go oglądać w dniu 29 października 2025 r. w godz. 14:30 – 15:00, lub 15 listopada 2025 r. w godz. 10:00-11:00 po uprzednim uzgodnieniu telefonicznym, z kilkudniowym wyprzedzeniem, z administratorem: Zakład Lokali i Budynków Komunalnych, tel. (89) 526-28-45
Ogłoszenia o przetargach organizowanych przez Prezydenta Olsztyna dostępne są na stronach internetowych olsztyn.eu, infopublikator.pl oraz w Biuletynie Informacji Publicznej, prowadzonym przez Urząd Miasta Olsztyna pod adresem bip.olsztyn.eu oraz na Elektronicznej Tablicy Ogłoszeń Urzędu Miasta Olsztyna.


